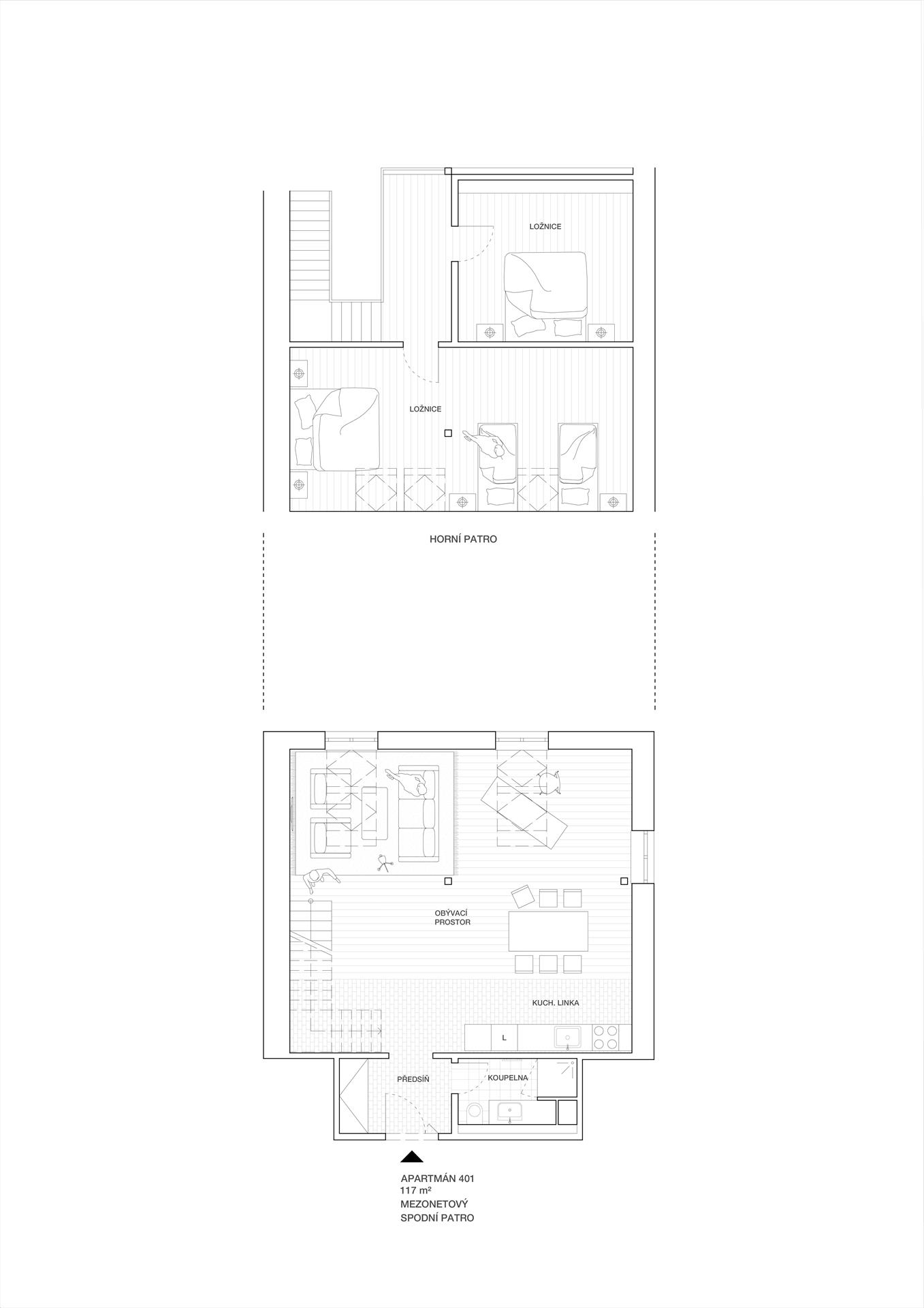
Apartmány
Kromě útulných pokojů nabízíme také ubytování v prostorných a stylově zařízených apartmánech. Všechny apartmány mají koupelnu, vlastní plně vybavený kuchyňský kout, jídelnu a obývací prostor. Téměř všechny apartmány mají krásný výhled na rybníky. Do všech apartmánů vede výtah.

Chráníme přírodu, pomozte nám s tím.
Vše, co nám příroda dala, se jí snažíme vrátit zpět. Valnou většinu elektrické energie vyrábí naše vlastní zdroje. Máme malou vodní elektrárnu s Kaplanovou turbínou z roku 1932 poháněnou vodou z náhonu, který se vine celým areálem, a fotovoltaické panely na střechách. Vodu čerpáme ze tří více než 30 metrů hlubokých vrtů, teplo vyrábíme tepelnými čerpadly a odpadní vody čistíme v ekologickém zemním filtru. Samozřejmě také pečlivě třídíme odpad. Jsme potěšeni, když se hosté k našemu úsilí připojí.